24小时咨询电话
027-82411111
当前位置 : 首页 > 大咖设计 > 刘艳
找TA设计
认真负责
DESIGNER
刘艳 高级主任设计师
从业时间 : 2001 作品数量 :14套
司 : 总部旗舰店
业主评价 :
    • 服务到位
    • 做事认真
    • 沟通清晰易懂
    • 有品位
    • 设计实用又美观
    • 效果和预想一致
    轻奢,法式,新中式,中古风,意式风
    • 个人简介
    • 设计理念
    • 经典楼盘
    • 中国装饰协会高级会员

      中国建筑装饰协会高级室内设计师

      中国建筑装饰协会高级陈设艺术设计师 

      2007年武汉市空间环境设计艺术大赛优秀奖

      2012年楚天都市报星级企业最佳服务设计师

      2021年第五届空间环境艺术大赛优秀奖

      2019-2022年武汉室内建筑装饰优秀设计师

      2023-2024年武汉室内建筑装饰优秀设计师

                       


    • 设计源于生活,需要不断的沟通和交流,人才是空间的主角。完美的设计是将空间的功能,先进的装饰材料,个性化的需求有机的结合起来,让生活中的主角能够自由自在的融入属于自己的独特空间。


    • 华发中央首府、月亮湾壹号、华发中央首府、中建御景星城  、中信泰富滨江金融城、和美小区、福星惠誉、融创玖玺台、华侨城、万科御玺滨江、 融创公园壹号、首地云梦台、青山樽,海工大,航空路壹号

    相关案例
    户型解析
    在施工地
    其他案例推荐
    相关案例
    户型解析
    盛观尚城150㎡四居室轻奢风高端雅苑户型解析
    四居室
    150m²
    轻奢风

        案例简介:本案例的主人公追求高品质生活,希望能够在结束忙碌工作之后尽情感受生活的美好,也因此在家装设计上更追求舒适感与品质感。而由于平常过来一起闲聊的朋友比较多,因此业主还与设计师强调希望能够将休憩空间与活动空间进行一定隔断,以提升自己与家人生活的私密性。基于此,设计师为业主选择了相对经典耐看而又高级的现代轻奢风,同时借助功能空间的合理划分进行动静分离,提升生活品质。


        户型解析:




       

        盛观尚城这套四居室的住宅面积约为150㎡,户型结构方正且平整,无需进行结构户型的大改动。根据业主的想法与需求,设计师以入户门为分界线,将内部区域打造为卧室、书房等休憩空间,而其于空间则打造为会客区域、做饭区域等相对比较热闹的功能空间,以提升业主及家人休憩的实密度。由于主卧面积较大,因此设计师将主卧空间进行再分割,通过软隔断打造出一个迷你的衣帽间,以避免休憩空间面积过大而带来空荡感。


        客厅:




        几何挂画简约而又充满现代艺术感,搭配上黑色茶几,为空间增添摩登风情。


        餐厅:


    餐厅.jpg

       

        就餐区域被设计在客厅区域的延长处,有效提升空间利用率。镂空深木色橱柜简约而又不失自然风情。



        次卧:


    次卧1.jpg

        淡蓝色墙面点缀上简约艺术挂画,避免空间给人单调区域的视觉效果。


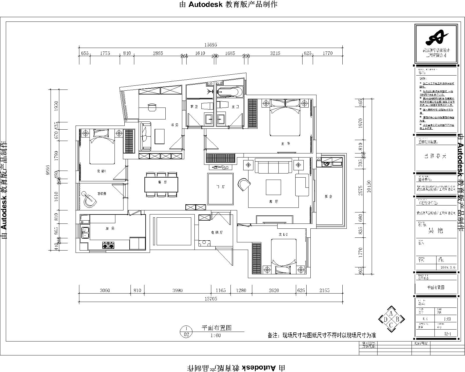
    巴黎春天 143㎡ 四居室欧式轻奢住宅户型解析
    四居室
    143m²
    欧式风

        案例简介:本案例的主人是一个二十多岁的年轻女孩,年纪虽然不算大但是却有着自己的坚持,而在家装设计上她也有着自己的想法与设计思路,因此设计师在进行本案例设计的时候充分考虑了业主本人的喜好、需求,然后再根据这些进行延伸、拓展,以保障能够打造出契合业主喜好的家居空间。


        户型解析:


    户型图.jpg



        巴黎春天这套143㎡的住宅户型最大的问题就在于不够平整,而户型 不平整所带来的犄角角落如果不进行合理的规划设计,那么整个空间不仅会缺乏美观度,还会造成空间的浪费。而设计师则利用户型的结构特点,顺着犄角空间放置置物台、浴缸,在无形之中化解了犄角困扰。而其他区域则按照业主的需求进行了一定的再划分,以满足日常起居使用。


        客厅:

    客厅效果图.jpg


        客厅选用了大量欧式元素,如华丽的吊灯、欧式造型家具、复古台灯等等,这些元素让整个会客区域看起来更加的华丽精致。


        餐厅:


    餐厅效果图.jpg


        带有暗纹处理的壁纸搭配上菱形纹理地板,奠定了精致的格调氛围。而桌椅、吊灯等细节设计,则为空间增添艺术时尚气息。


        书房:


    书房效果图.jpg


        极具艺术氛围的吊灯搭配上复古的浅色台灯,将时尚的气息与欧式复古风情完美交织在一起。


        卧室:


    卧室效果图.jpg

    卧室效果图2.jpg

        卧室沿用了与整个房屋一致的元素,通过各类线条的走向、家具的造型处理营造一种典雅高贵的大气美。


    在施工地
    • 开工
    • 前期
    • 中期
    • 后期
    • 竣工
    预约设计师
    海量行家, 抢订免费设计服务
    每日前20名申请用户, 获3D装修设计图
    预约设计师
    姓名*
    楼盘*
    电话*
    *为了您的权益, 您的隐私将严格保密
    推荐相关案例
    免费获取同款设计方案
    姓名*
    楼盘*
    电话*
    *为了您的权益, 您的隐私将严格保密
    预约成功
    您已报名成功, 稍后会有客服人员联系您。 您的隐私将被严格保密。
    关注二维码了解更多装修知识
    联系我们
    装修咨询电话 : 027-82411111
    售后服务电话 : 027-82866788
    公司地址 : 武汉市江岸区澳门路232号金冠大厦
    关于我们
    友情链接 :
      武汉澳华装饰设计工程有限公司 页面版权所有 www.ao-hua.com

      算一算,您家装修需要花多少钱?

      知精准报价 避装修深坑

      01/03

      选择您喜欢的风格

      • 现代轻奢

      • 现代美式

      • 北欧

      • 新中式

      • 欧式

      • 其他

      算一算,您家装修要花多少钱?

      知精准报价 避装修深坑

      02/03

      选择房屋面积区间

      • 80-100㎡
      • 100-140㎡
      • 140-200㎡
      • 200-300㎡
      • 300㎡以上

      03/03

      您的户型

      • 两居室

      • 三居室

      • 四居室

      • 五居室

      • 六居室

      算一算,您家装修要花多少钱?

      知精准报价 避装修深坑

      0%

      稍等片刻,您的报价正在生中......

      算一算,您家装修要花多少钱?

      知精准报价 避装修深坑

      您的完整报价已经生成

      报名成功享抢订优惠名额

      每日仅限前10名用户