案例介绍
业主对家的定义:作为多子家庭,孩子的生活品质是自己极为关注的部分,在风格的选择上,奢华而不奢靡的欧式风格能为孩子带来更多优质的视觉感受,而欧式家具的细腻质感能带来品质的生活体验,符合家庭对家的期待。业主希望孩子在空间中有用更多活动面积,精致布置之余不失童趣与温馨感。
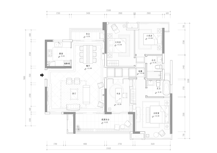
户型解析

这是橡树湾中一套160㎡的四居室,户型面积中等,采光条件好,但内部分区较多,休憩区分区杂乱,需要设计出有逻辑的行动走线,这样整体空间才具有设计感和时尚感。将餐厅与客厅中的非承重墙拆除,将两个功能区合二为一,扩大了公共区域面积,使日常走动更为方便,以过道为中心,南北各分布两个休憩区,日常生活变得更为舒适。
玄关


玄关为进门见厅的格局,过道并不长,墙面装饰简单。
客厅


餐厅与客厅一体化布局,白色基调下给人一种雍容典雅的视觉观感,欧式皮质沙发自带质感与颜值,搭配方形欧式茶几和深灰色地毯,演绎出优雅、上档次的欧式风尚,在整个空间中,家具多以兽腿造型呈现,符合欧式风格特色。
卧室

卧室空间邂逅浪漫紫色,时尚高雅的软包设计不仅增添了隔音效果,也散发出优雅古典的欧式气息,电视机的融入凸显出主人对高品质生活的追求,传递出舒适智能的欧式生活品质。
其他

儿童房以米色调为背景,搭配白色欧式双人床,传递出静谧柔和的家居氛围,卡通元素的融入令空间洋溢着青春鲜活的气息。
知精准报价 避装修深坑
选择您喜欢的风格
现代轻奢
现代美式
北欧
新中式
欧式
其他
知精准报价 避装修深坑
选择房屋面积区间
您的户型
两居室
三居室
四居室
五居室
六居室
知精准报价 避装修深坑
稍等片刻,您的报价正在生中......
知精准报价 避装修深坑
每日仅限前10名用户