案例简介:本案例的房屋位于喧嚣的住宅区高层,有着绝佳的采光通风及观赏视角,设计师将阳台、会客区域与室外景色作为一个整体进行规划设计,有效提升了室内外的联系感,让室外景色能够“借”入会客区域,以提升整个客厅区域的格调感。而相同材质的穿插使用及不同类型块面的碰撞,则让整个家居空间更显丰富,搭配以质感元素,品质韵味呼之欲出。
户型解析:


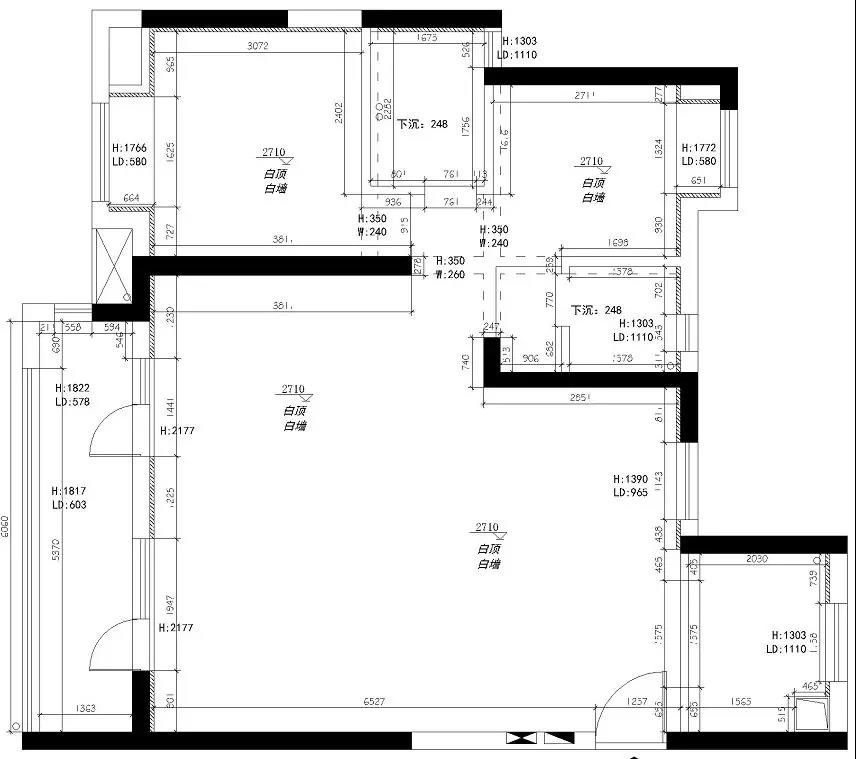
新城璟悦城的这套三居室面积为123平方米,整体户型南北通透、采光较好,设计师在设计时将重点放在了功能配比与动静分区上,将休憩区域与会客区域、就餐区域隔开,以提升生活质感。为满足主人的办公、阅读需求,设计师将一块空间划分为迷你书房,搭配以简单的装饰,让空间兼具功能性与美观性。
客厅:



白色水泥墙搭配上镶金边处理的电视背景墙,一种典雅的轻奢氛围呼之欲出。绿色的丝绒沙发,则让空间的色彩感更为跳跃活泼。
厨房:

厨房区域以暖黄色为主基调色,简约清新而又不会显得过于单调,核桃色的木质橱柜,则让空间更显高级品质。
卧室:

卧室区域没有过多的装饰,仅以两幅简单艺术画的叠挂作为装饰点缀,简约而又不失浪漫格调。
知精准报价 避装修深坑
选择您喜欢的风格
现代轻奢
现代美式
北欧
新中式
欧式
其他
知精准报价 避装修深坑
选择房屋面积区间
您的户型
两居室
三居室
四居室
五居室
六居室
知精准报价 避装修深坑
稍等片刻,您的报价正在生中......
知精准报价 避装修深坑
每日仅限前10名用户