案例简介:本案例的业主是一位独居的年轻女士,作为一个新时代的都市丽人,她对家的理解是能够充分释放自己的心灵,不要过多繁琐的设计。而根据业主介绍,她一般自己一个人居住,父母偶尔会过来陪伴自己。因此设计师在进行本案例的规划设计时,为业主的家人预留出一个客房,而整体的装修风格选择了相对比较简约而又不失小资格调的简欧装修风格,搭配以少量装饰元素,简约而又耐看。
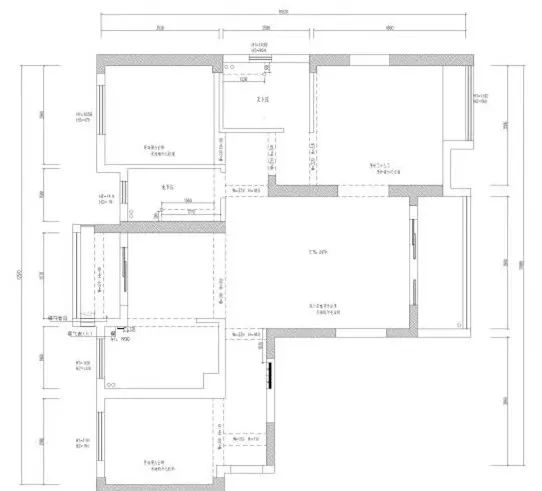
户型解析:


联发九都国际6期这套二居室住宅的面积为123㎡,整体的户型结构呈现“L”形,空间犄角少却格局合理,因此设计师的设计重点放在了功能的划分上。根据业主起居使用需求,空间左半部分被划分为休憩空间,中间则被规划为会客区域,左半侧则设计为做饭与就餐空间,整体动静分区合理,在无形之中提升了生活的品质。
玄关:

玄关处通过墙面材质的碰撞来营造丰富的结构感,木质墙面与水泥墙面将整个墙面划分为几何形,简约耐看中透露着一抹个性气息。
客厅:

皮质沙发与大理石材质桌子之间通过材质的对比碰撞提升了空间的结构感与层次感,简约艺术挂画则彰显了主人的独特品味。
餐厅:

光泽感强的桌椅、墙面让就餐区域有了一抹流光溢彩的高级美,华丽的吊灯与精美的挂画则赋予空间艺术美感。
厨房:

黑白的经典配色展示了厨房空间的现代美,质感清冷的暖色系瓷砖则透露着大气端庄,各处小细节均体现着都市丽人对于高品质生活的追求。
知精准报价 避装修深坑
选择您喜欢的风格
现代轻奢
现代美式
北欧
新中式
欧式
其他
知精准报价 避装修深坑
选择房屋面积区间
您的户型
两居室
三居室
四居室
五居室
六居室
知精准报价 避装修深坑
稍等片刻,您的报价正在生中......
知精准报价 避装修深坑
每日仅限前10名用户