案例简介:本案例的业主是一个三口之家,有一个六岁的宝宝,而父母也偶尔会过来聚一聚,因此业主们对于空间的设计要求是将空间进行再规划,满足多位家庭成员的居住需求。同时希望房屋动线设计合理,并设计出足够的亲子互动空间,以保障孩子能够健康快乐的成长。基于此,设计师对空间进行了重新划分,同时融入清新明快的元素,强调空间童真氛围。
户型解析:


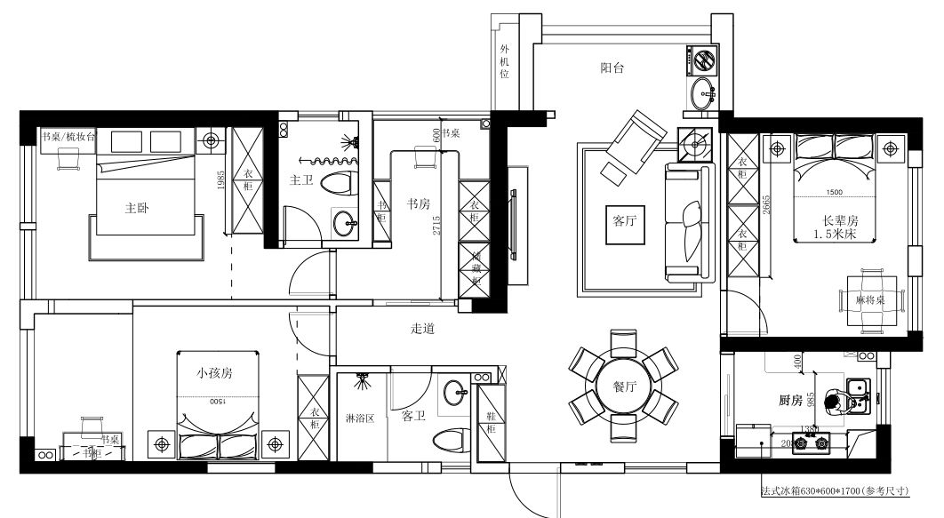
顶琇国际城这套129㎡的四居室住宅原有的户型结构相对比较简单,并没有进行一定的功能区域划分,因此设计师需要根据业主的使用需求对空间进行规划设计,同时再加以软装设计,来提升家居空间的品质感。为了满足业主的办公、阅读需求及孩子的学习需求,空间中特意打造出一块书房区域,同时借助大面积的开窗设计来提升环境舒适度。
客厅:



淡蓝色的墙面搭配上浅色暗纹的沙发,低调中又带有一抹淡淡的清新气息。木质桌子则与不易沙发之间形成碰撞,提升了空间的立体感与质感。
餐厅:


餐厅区域位于客厅区域的延伸处,仅以简单的木质桌椅构成,强调实用性。
卧室:


素色条纹壁纸搭配上浅蓝色田园风窗帘,清新典雅而又不失自然浪漫风情。
知精准报价 避装修深坑
选择您喜欢的风格
现代轻奢
现代美式
北欧
新中式
欧式
其他
知精准报价 避装修深坑
选择房屋面积区间
您的户型
两居室
三居室
四居室
五居室
六居室
知精准报价 避装修深坑
稍等片刻,您的报价正在生中......
知精准报价 避装修深坑
每日仅限前10名用户